Помощь
 
Отзыв
 
Закладка
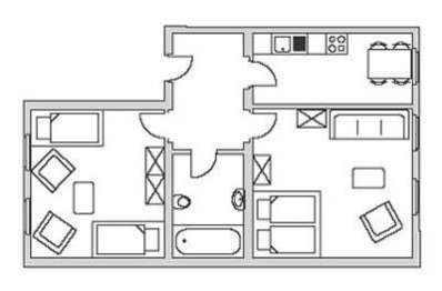
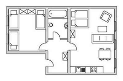
  • Количество номеров

    7
  • Информация

    Адрес

    Rudolfstr. 13b, Dresden, Германия, 01097
  •  Отзывы
  •  Отель на карте
  •